设计名称:《星光童行:走进自闭症儿童的内心世界》

《星光童行:走进自闭症儿童的内心世界》是一项以公益为核心、融合艺术与科技的综合性展览活动,本次活动以“艺术科技与互动”为主题,通过沉浸式体验、互动游戏和公益联动等形式,展现自闭症儿童的创造力与潜能,提升社会对自闭症儿童的认知与理解。

当艺术的笔触与自闭症儿童的心灵世界悄然相遇时,这不仅是色彩与情感的碰撞,更是对理解与包容的深情叩问。在社会对特殊群体关注度日益提升的当下,《星光童行—走进自闭症儿童的内心世界》画展以独特的视角,为我们打开了一扇通往另一个奇妙世界的窗。一幅幅充满童真与想象的画作,用斑斓的色彩、奇幻的线条,承载着自闭症儿童独一无二的内心故事,展现了艺术治愈心灵的无限可能。
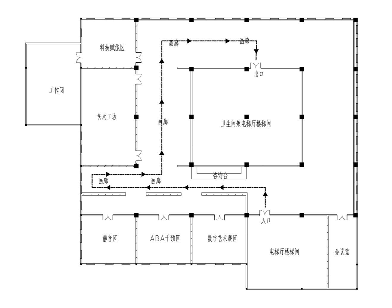
CAD平面图:

俯瞰全景图:


关于我们
小组成员:王莲皎,王璐瑶,崔兰芳,张艺佳。
衷心感谢张玮老师在毕业设计中的悉心指导,她严谨的治学态度、耐心的教导和专业的建议,助我们攻克重重难关。同时非常感谢会展专业老师们对我们小组的包容与耐心,让我们顺利完成毕业设计。